2025. 7. 16. 14:04ㆍworks/2025│무인건축

Program : Office
Location : Yeonnam-dong, Seoul
Year of completion : 2025.05
Floor : B1 / 5F
Site Area(m²) : 163.00
Building Area (m²) : 97.25
Total Floor Area(m²) : 421.58
Photo : Oh Se-won
오세상코퍼레이션 빌딩
연남동
한동안 지구단위계획으로 신축이 어려웠던 지역의 첫 번째 신축건물이었다. 그만큼, 주변건물들은 오래된 구옥들이었고, 기존 건축물 또한 단층 단독주택이었다. 소규모 필지에 새 건물이 들어서면서 발생하는 골목 스케일의 변화는 필연적으로 주변과의 위화감을 발생시킬 수 밖에 없었고, 오세상코퍼레이션 빌딩은 새로운 골목의 방향과 기존 골목의 특징사이에서 적절한 응답이 될 수 있도록 계획하였다. 그리고, 그것은 프라이버시와 공공성의 균형, 골목과 실내의 연속성을 중심으로 디자인 되었고, 나아가 기후 대응형 외피 설계를 통해 건물의 관리문제와도 연결될 수 있도록 하였다.

도시 맥락과 매스 전략
연남동의 치장별돌로 마감된 주택들 사이에서 새로운 건물의 존재감을 과시하기보다, 인접 건물과의 시선·거리·리듬을 먼저 읽었다. 전면은 층마다 깊이와 위치가 엇갈리는 더블 스킨 으로 계획해, 한 덩어리의 큰 매스가 아닌 여러 얇은 막이 겹쳐진 듯한 수평 단면을 만들었다. 이 수법은 골목의 스케일에 맞춰 건물의 체적을 시각적으로 분절하고, 거리 풍경에 리듬을 더하면서, 연남동이라는 지역성을 상징하도록 하였다.


1층: 공공성과 자연감시
골목의 생활 동선이 지나쳐가는 1층은 솔리드하게 막기 보다는, 전면을 유리로 열어 카페 등의 다중이용시설이 들어오도록 유도하였다. 밤에도 내부의 빛이 골목을 밝히는 자연감시(natural surveillance) 역할을 하도록 하여, 지역거주자와 방문자 모두에게 안전감을 줄 수 있도록 하였다. 제공한다. 골목의 모서리도 시각적으로 열어 두어 골목–실내–후면을 잇는 시선의 관통을 확보할 수 있도록 하였다.


프라이버시와 채광·환기의 공존
맞은편 주거와의 간섭을 줄이기 위해 전면에는 시선을 걸러내는 루버를 디자인 하였다. 층마다 각도·간격을 달리하고, 더블 스킨 발코니의 깊이와 결합해 다양한 각도에서 불투명–반투명–투명의 시각적 필터를 구성했다. 그 결과 프라이버시를 지키면서도 채광과 환기는 적극적으로 받아들이는 입면 장치가 만들어졌다. 일률적 장식에서 벗어난 이 루버의 변주가 연남동 특유의 가벼운 리듬감과 자연스럽게 호흡하도록 하였다.





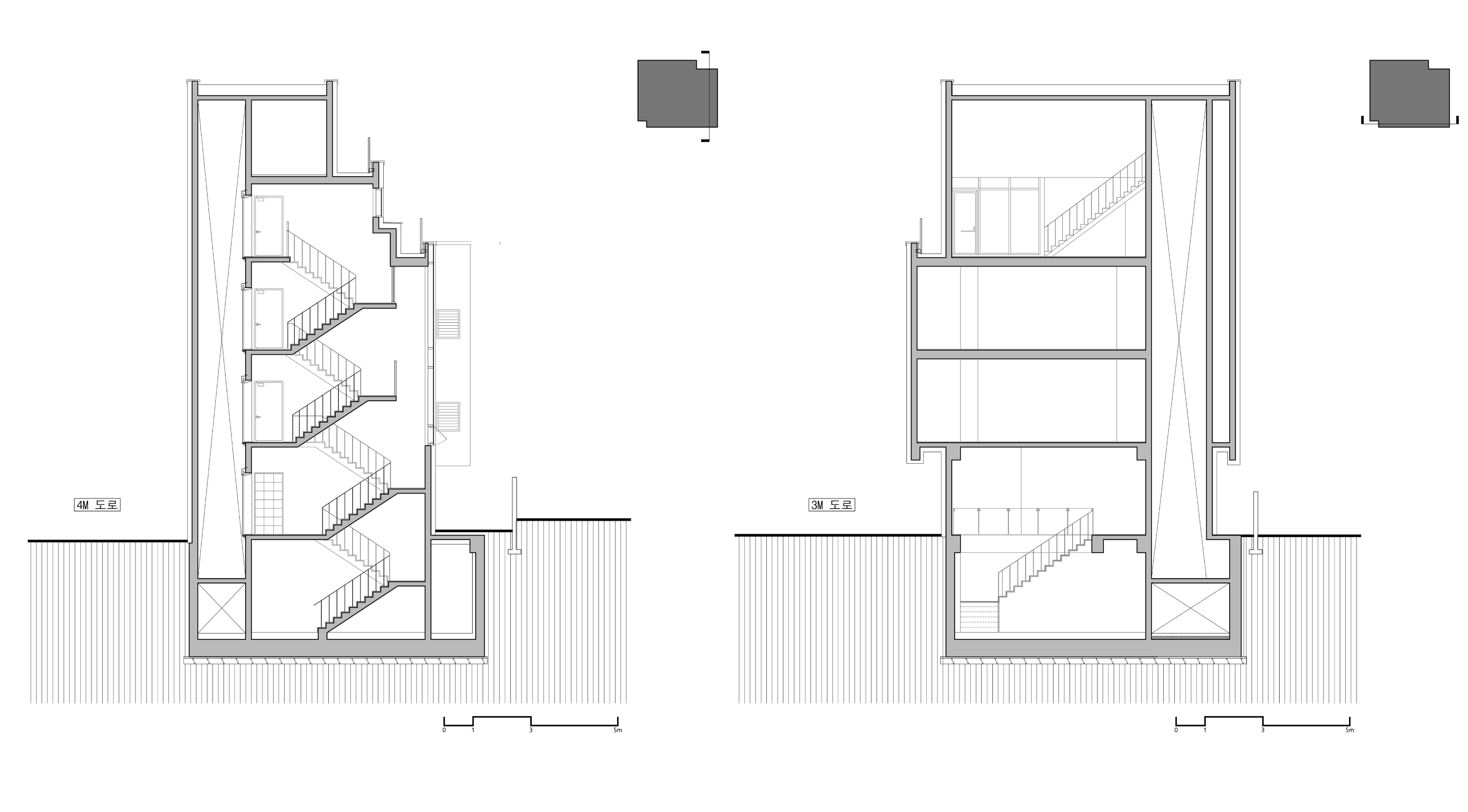
공용부의 재해석: 수직 보이드와 계단실
서울의 소형 건축에서 흔한 “공용부 최소화” 관행을 의도적으로 비틀었다. 1층 계단실을 최대화하고 1–3층을 관통하는 수직 보이드를 두어, 법적 면적 증가 없이 빛·바람·시선의 공유를 꾀했다. 수직 보이드 공간에 면한 수직으로 긴창은 계단실에 낮에는 하늘빛을, 밤에는 달빛을 꾀어내어 제법 풍부한 공용공간이 되도록 하였다.





동선 조직: 단절과 연결의 균형
프로그램 특성상 각 층은 독립성을 필요로 하지만, 완전한 단절은 공간의 잠재력을 약화시킨다. 2·3층을 제외한 상·하부층에는 층간 보조 연결 동선을 마련해, 필요 시 수직적으로 확장 가능한 구조를 만들었다. 이는 단순화의 과도함을 피하면서도 운영의 유연성을 확보하려는 시도이며, 상업적으로 통임대를 유도하려는 장치이기도 하다.






외피·에너지 성능: 전면 외단열과 열교 차단
연중 일교차가 커지는 도심 기후에 대응해 지붕까지 포함한 전면 외단열(EIFS)공법을 채택하였다. 설계 단계에서 에너지 시뮬레이션을 수행해 단열 두께·재료·디테일을 최적화하고, 외단열공법의 단점인 화재취약성을 최소화 하기 위해, 리본 앤 댑(Ribbon and Dab)방식으로 시공될 수 있도록 시공사와 면밀히 협업하였다. 창 주위 후레싱과 틈새 마감을 체계화해 오염 추적과 누수 리스크를 줄이도록 하였고, 외단열의 연속성을 유지함으로써 유려한 매스감과 함께 열환경 관리의 용이성까지 확보했다.

우수(雨水) 디자인: 선홈통과 레인 체인
측면의 노출 선홈통은 장식과 성능을 함께 드러내는 디자인적 장치이다. 두 개의 선홈통은 수평적 요소가 강한 전면과 대비되는 수직적 요소로 입면을 장식으로 사용된다. 기능적으로도 두 개의 선홈통은 평지붕의 구조체용 배수와 마감층 배수를 두 가닥으로 분리해 폭우 시에도 여분의 빗물이 구조체 내부로 스며들지 않도록 설계되었다. 전면 발코니 배수는 바닥 천공을 최소화하고 측면 오버플로우 + 레인 체인으로 유도하여, 물 고임으로 인한 오염을 줄이고 골목 입면에 세로선의 미세한 움직임을 더했다.


재료와 색: 지역성의 절제된 표현
주변의 적색 치장벽돌과 대비되는 백색 스타코마감은 골목의 빛을 부드럽게 확산시킨다. 1층 모서리의 적색 블록은 기존 담장의 희미한 흔적으로 남겨두었으며, 스테인리스 선홈통과 블랙 레인 체인은 기능을 숨기지 않고 도시적 디테일로 드러낸다.


결론
오세상코퍼레이션 빌딩은 “작은 대지–큰 매스”라는 구조적 난제를 관계의 설계로 풀어낸 디자인이다. 루버와 더블 스킨, 열린 1층과 수직 보이드, 기후 대응형 외피, 성능을 드러내는 우수 디테일까지—각 장치는 프라이버시·공공성·유지관리·에너지 성능이라는 서로 다른 요구를 한 몸체 안에서 조율한다. 연남동이라는 장소성과 오늘의 생활 방식을 함께 담아낸, 작지만 단단한 동네 인프라다.
